Validation des études techniques et suivi des travaux du projet de construction d’une zone centrale, création d’un module domestique et aménagement divers à l’aéroport Mohammed V

Fiche de projet

Présentation succincte du projet

Catégories : Infrastructure Aéroportuaires et Maritime, Autres Équipements

Le présent projet a pour objet Validation des études techniques et suivi des travaux du projet de construction d’une zone centrale, création d’un module domestique et aménagement divers à l’aéroport Mohammed V dont le montant des travaux est estimé à 268 814 276.26 Millions de dirhams

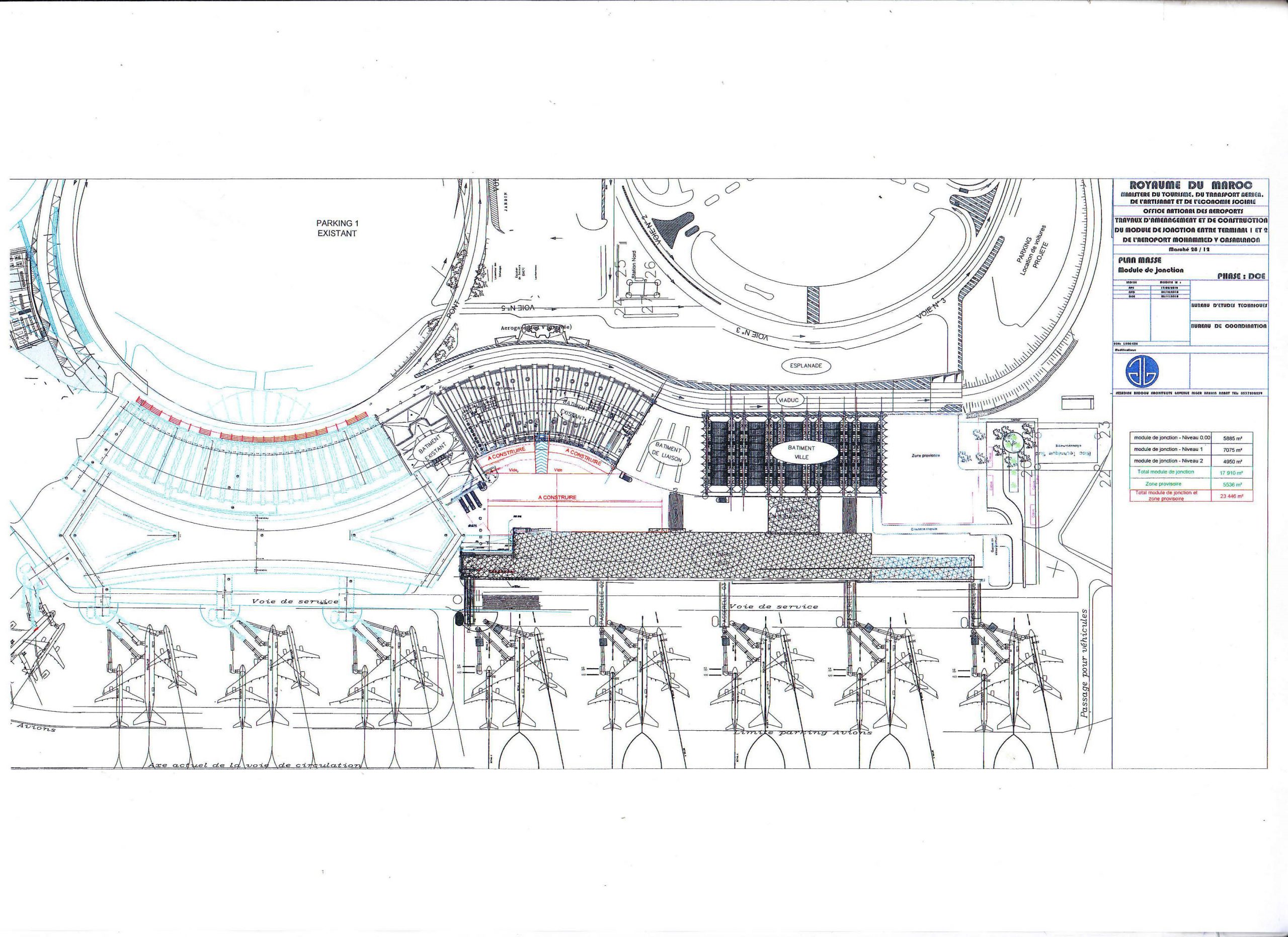
Consistance des ouvrages

Dans le cadre du présent projet les travaux consistent en:

La zone centrale comprend la réalisation d’un bâtiment en trois niveaux :

Niveau 0 d’une surface 5300 m² qui comprend principalement :

  • Construction d’une zone technique d’une superficie de 2370 m²
  • Réaménagement d’une salle d’embarquement domestique de 3380 m² et une salle de débarquement domestique 360 m²
  • Création d’une zone d’accès au niveau 1 composé de trois escalators et trois ascenseurs. 600 m²
  • Extension de la zone de retour bagages sur une superficie de 1150 m²
  • Aménagement d’un accès pour chariot à bagages

Niveau 1 de 7000 m² qui comprend :

  • Une zone pour le contrôle frontalier composée de 25 filtres police, 6 postes d’inspection filtrage (Rayon X), un ensemble de bureaux et blocs sanitaire d’une surface 4200m²
  • Création d’une passerelle trois voies reliant le niveau 0 au niveau 4.70 d’une superficie de 880 m²
  • Une passerelle de liaison entre le niveau 3.70 et 5.20 de 260 m²
  • L’aménagement d’une zone pour le transit INT ver Domestique de 630 m²
  • Extension de la dalle du niveau 5.20 d’une superficie de 1060m²

Niveau 2 de 5000 m² qui comprend :

  • Départ INT – filtres de sureté de 4000 m²
  • Bureaux, Salon VIP, Blocs sanitaires de 1000m²

La construction d’un module provisoire pour les passagers domestique

Une superficie de 5700m² qui comprend :

    • La création d’une passerelle pour l’accès à la zone domestique depuis le niveau 3.70
    • La réalisation d’une salle de vols domestique d’une superficie
    • La réalisation d’une salle pour le traitement des passagers en transit DOM/INT
    • La réalisation d’une salle pour le traitement des passagers en transit INT/DOM équipée de cinq filre police PAF et cinq poste d’inspection filtrage PIF et dotée d’un ensemble de bureaux et des blocs sanitaires
    • La création d’un accès pour les passagers domestique en départ

<liL’aménagement d’un accès pour les chariots à bagages>

  • L’aménagement de voirie et trottoirs pour la circulation des cobus.

 

Délais de réalisation

Les délais de ce projet sont comme suit

Besoin d’un renseignement !

N'hésitez plus et remplissez de suite notre formulaire que nous traiterons en un rien de temps !
Contactez-nous

Société BETAM en chiffre

Venez au plus proche de notre bureau d'études

0 Employés

0 Références